夫が激推しだったのが三井ホーム。
家の性能も良く、何より全館空調に惹かれた。
あと夫の実家も三井ホーム、土地情報持ってきてくれたのも三井ホーム、設計士が車好きで夫と打ち合わせの度に盛り上がってたのも三井ホーム。
三井ホームは店長代理の塩顔イケメン営業&車好き設計士の組み合わせで御二方ともとても良い方でした。
あれ?これは三井ホームになるんじゃね?と最初は思った三井ホーム。
ではなぜ、三井ホームにならなかったのか…それは…最後まで候補に残った積水・ヘーベルに比べて値段が高かったことと、値段を下げるために坪数を減らされたことと、何より私と設計士が合わなかったから!!!
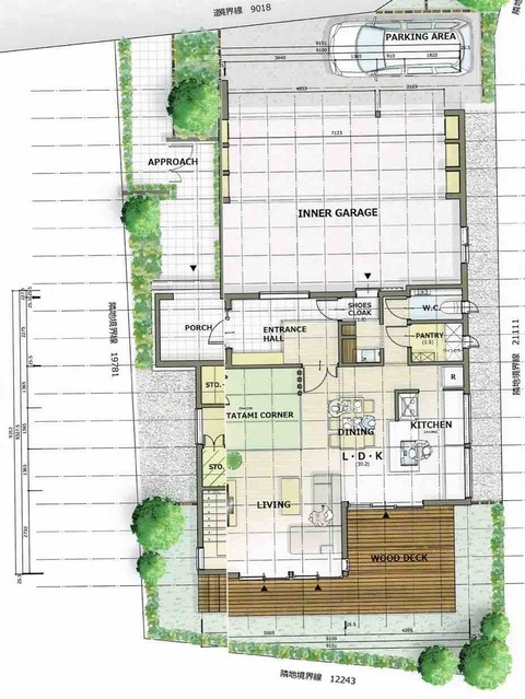
※三井ホームのプランもとてもオシャレで良かったです。一番最初の図面↓

一階はインナーガレージと広いリビング+庭+ウッドデッキがメインの図面。


外構内装共に凝ってます。
ただ、私はオシャレでもシンプルで無駄がない機能的なお家が良かったんだけども、毎回これ要る???的なオシャレ感を出してきた。
例えば設計士さんの外構プラン↓

①玄関のひさしの上のスペースは重厚感出ておしゃれ
→どうやって掃除すんの?
②玄関までのアプローチ
→そこに道作る必要ある?外構に金掛けるなら内装に掛けたい。
③植物も取り入れて
→手入れ大変なのと虫がつくから植物いらん!緑は周りにある!
内装プラン↓

④流行りのステップフロア
→共働きで家事を極力省くためにルンバを投入したいのでフラットなフロアが良いです。
⑤天井も高さを3段階変えて
→必要ない。値段いくら上がるの?
⑥和室横の縦棒がアクセントに
→???子どもがぶつかるんじゃね?
…って感じで、オシャレなんだけど、私が求めるものとちがーう!!😂
打ち合わせて書き直してくれた図面も素直にこちらの言うことは取り入れてくれず、毎回ちょっと趣向がズレてる😂
恐らく設計士さん的には自信があったんだと思います…建てれば良いデザインだと思ってもらえると…
入手したのが建築条件付く前の土地で良かった〜。
全館空調付けたかったんだけどな〜。
家の性能も良く、何より全館空調に惹かれた。
あと夫の実家も三井ホーム、土地情報持ってきてくれたのも三井ホーム、設計士が車好きで夫と打ち合わせの度に盛り上がってたのも三井ホーム。
三井ホームは店長代理の塩顔イケメン営業&車好き設計士の組み合わせで御二方ともとても良い方でした。
あれ?これは三井ホームになるんじゃね?と最初は思った三井ホーム。
ではなぜ、三井ホームにならなかったのか…それは…最後まで候補に残った積水・ヘーベルに比べて値段が高かったことと、値段を下げるために坪数を減らされたことと、何より私と設計士が合わなかったから!!!
※三井ホームのプランもとてもオシャレで良かったです。一番最初の図面↓

一階はインナーガレージと広いリビング+庭+ウッドデッキがメインの図面。


外構内装共に凝ってます。
ただ、私はオシャレでもシンプルで無駄がない機能的なお家が良かったんだけども、毎回これ要る???的なオシャレ感を出してきた。
例えば設計士さんの外構プラン↓

①玄関のひさしの上のスペースは重厚感出ておしゃれ
→どうやって掃除すんの?
②玄関までのアプローチ
→そこに道作る必要ある?外構に金掛けるなら内装に掛けたい。
③植物も取り入れて
→手入れ大変なのと虫がつくから植物いらん!緑は周りにある!
内装プラン↓

④流行りのステップフロア
→共働きで家事を極力省くためにルンバを投入したいのでフラットなフロアが良いです。
⑤天井も高さを3段階変えて
→必要ない。値段いくら上がるの?
⑥和室横の縦棒がアクセントに
→???子どもがぶつかるんじゃね?
…って感じで、オシャレなんだけど、私が求めるものとちがーう!!😂
打ち合わせて書き直してくれた図面も素直にこちらの言うことは取り入れてくれず、毎回ちょっと趣向がズレてる😂
恐らく設計士さん的には自信があったんだと思います…建てれば良いデザインだと思ってもらえると…
でも施主は私(と夫)だー!!ペアローンだ!!
そしていらんて言ってんのに毎回毎回植物投入してくんな!!
ということで、最後の打ち合わせには私は行きもせず、夫だけ行かせてサヨナラしました。入手したのが建築条件付く前の土地で良かった〜。
全館空調付けたかったんだけどな〜。
コメント